OSIEDLE MAGNOLIA II Zad.3
Budynek B5 - JUŻ W SPRZEDAŻY

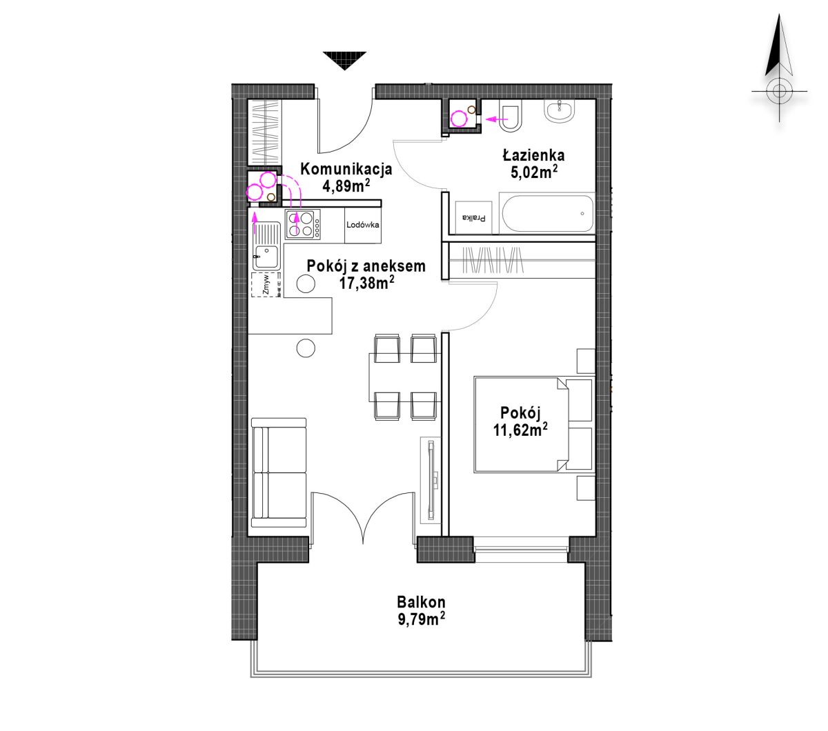
Nr mieszkania B56
Liczba pokoi 2
Piętro 5
Pow. mieszkalna 38.91 m2
Cena brutto lokalu 379 373 zł