OSIEDLE MAGNOLIA II Zad.3
Budynek B5 - JUŻ W SPRZEDAŻY

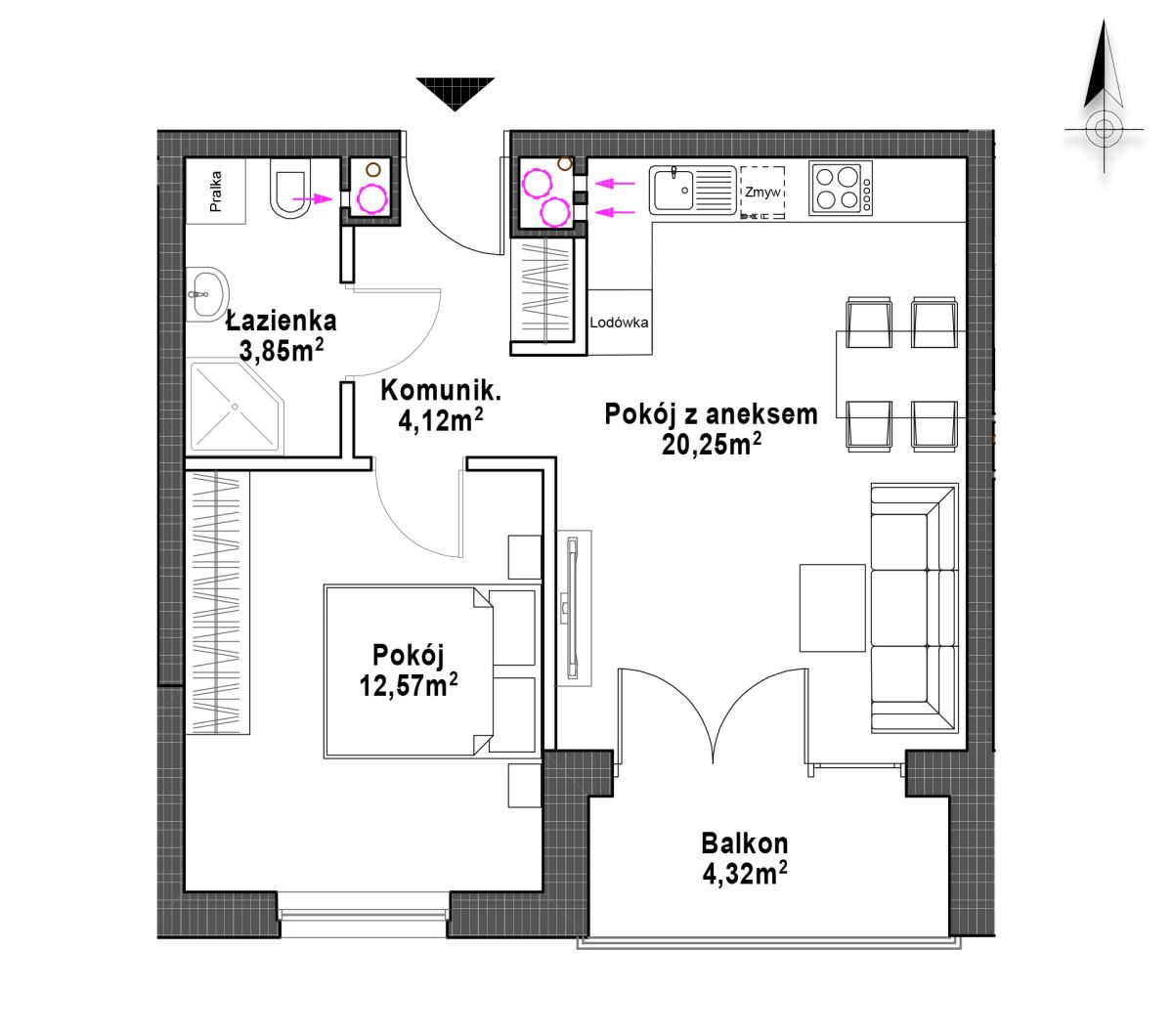
Nr mieszkania B49
Liczba pokoi 2
Piętro 4
Pow. mieszkalna 40.79 m2
Cena brutto lokalu 399 742 zł