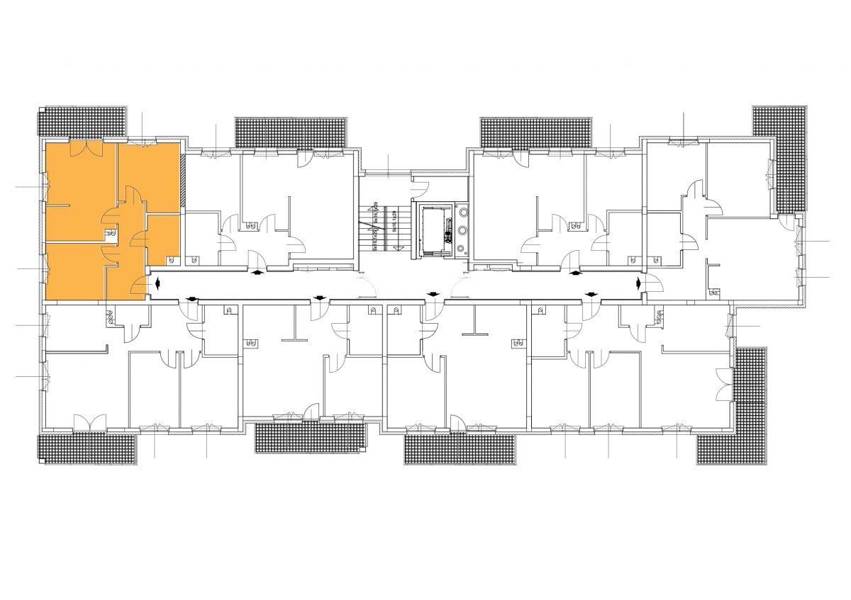
SŁONECZNE PIASKI 2 - BUD. B3
Puławy, ul. Woźnego / Bernaciaka "Orlika"

SŁONECZNE PIASKI 2 - BUD. B3
Nr mieszkania 31
Liczba pokoi 3
Piętro III PIĘTRO
Pow. mieszkalna 50.80 m2
cena na telefon cena na telefon