SŁONECZNE PIASKI 2 - BUD. B3
Puławy, ul. Woźnego / Bernaciaka "Orlika"

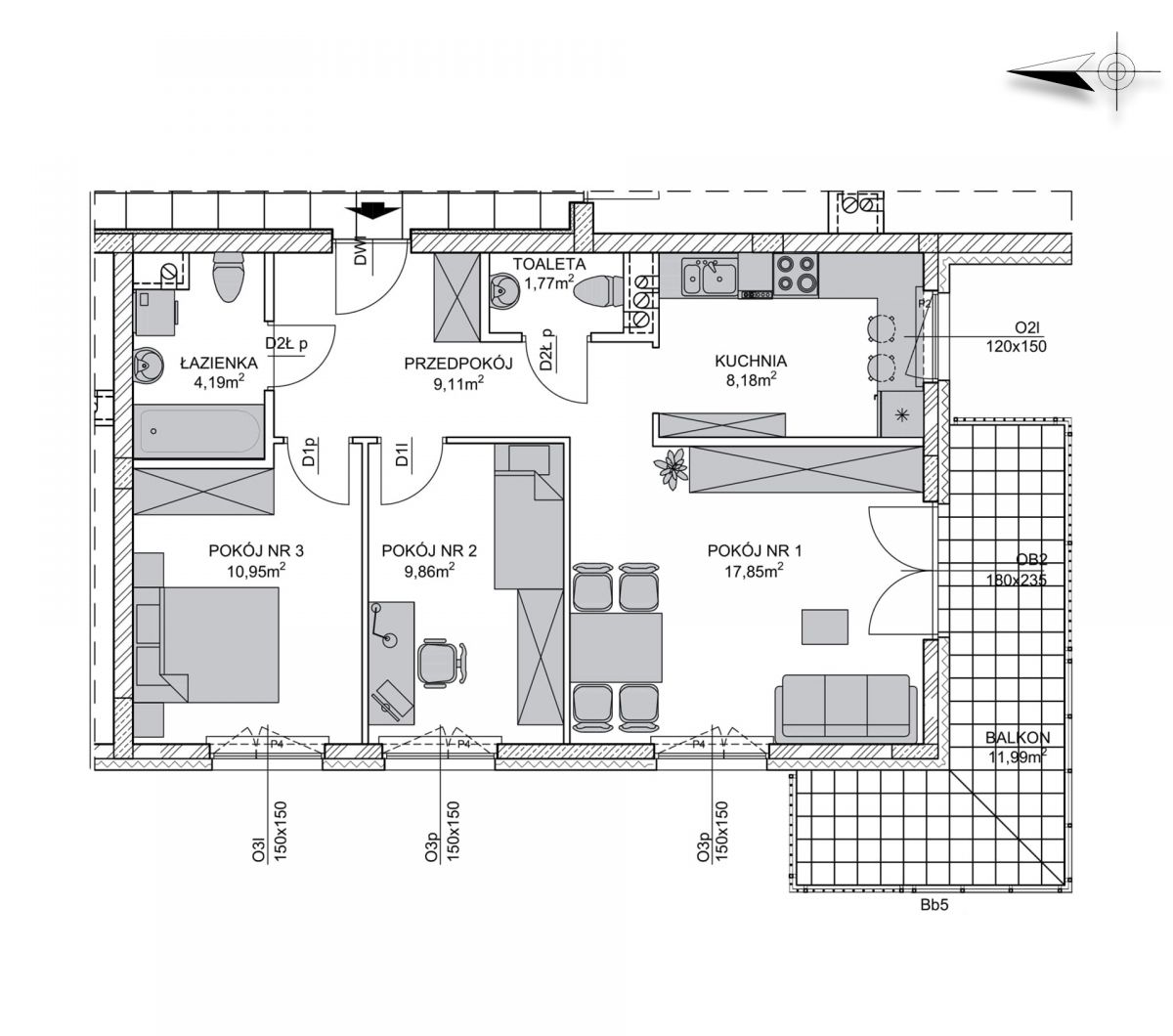
SŁONECZNE PIASKI 2 - BUD. B3
Nr mieszkania 19
Liczba pokoi 3
Piętro II PIĘTRO
Pow. mieszkalna 61.91 m2
cena na telefon cena na telefon