SŁONECZNE PIASKI 2 - BUD. B3
Puławy, ul. Woźnego / Bernaciaka "Orlika"

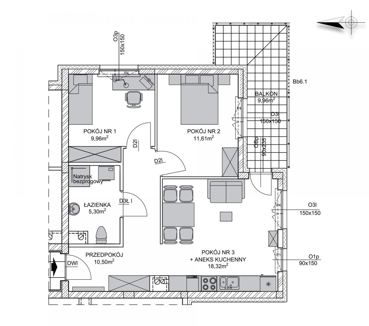
SŁONECZNE PIASKI 2 - BUD. B3
Nr mieszkania 10
Liczba pokoi 3
Piętro I PIĘTRO
Pow. mieszkalna 55.69 m2
cena na telefon cena na telefon