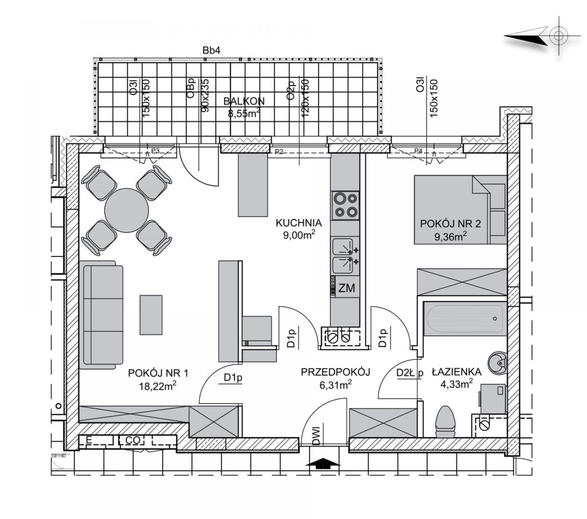
SŁONECZNE PIASKI 2 - BUD. B3
Puławy, ul. Woźnego / Bernaciaka "Orlika"

SŁONECZNE PIASKI 2 - BUD. B3
Nr mieszkania 1
Liczba pokoi 2
Piętro PARTER
Pow. mieszkalna 47.22 m2
cena na telefon cena na telefon