OSIEDLE MAGNOLIA II Zad.1
Gotowe do odbioru- SPRZEDANE

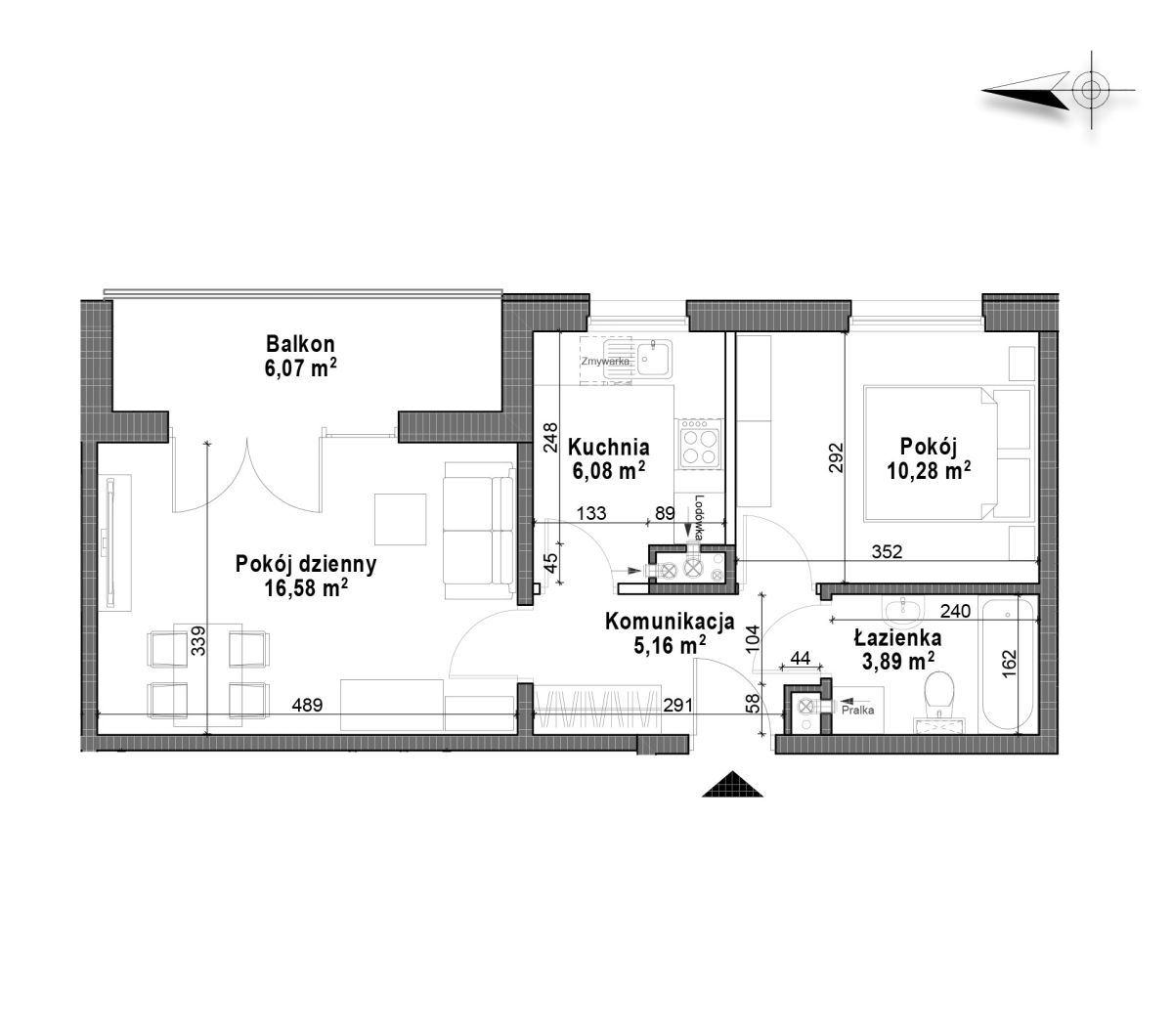
Nr mieszkania B5
Liczba pokoi 2
Piętro 0
Pow. mieszkalna 41.99 m2
cena na telefon cena na telefon