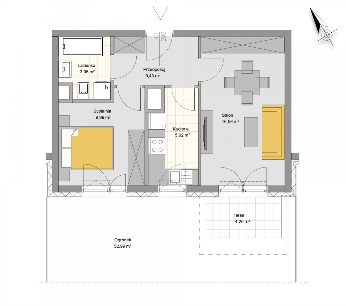
Słoneczne Ogrody "G"
ul. Wrońska

Słoneczne Ogrody
Nr mieszkania 64
Liczba pokoi 2
Piętro 0
Pow. mieszkalna 41.86 m2
Pow. ogródka/tarasu 52.99 m2
cena na telefon cena na telefon